
NOT A HOTEL NASU
CAVE
Expertise
Business Development
Project Management
Design
Brand Direction
CG Visualization
Engineering Management
Life Cycle Management
Hotel Management
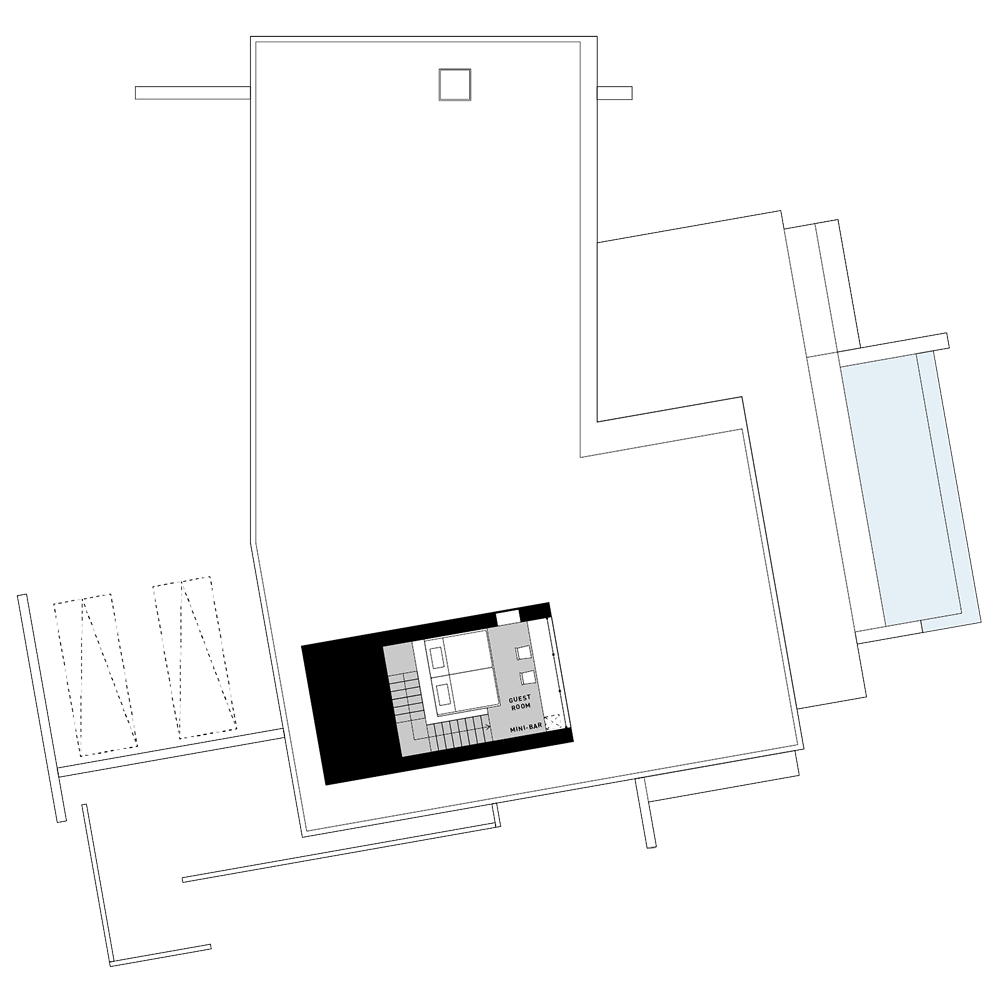
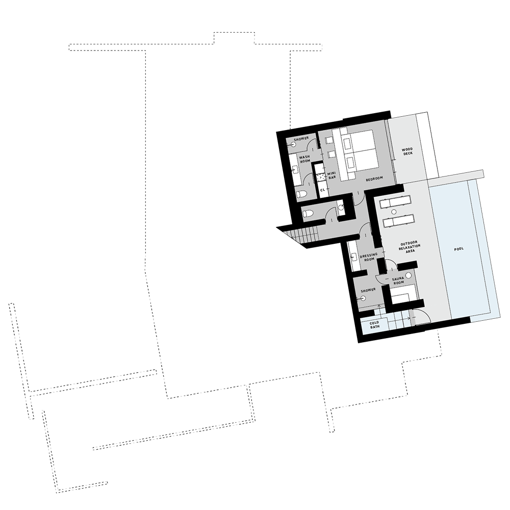
那須の雄大な自然と呼応するように誕生した「NOT A HOTEL NASU CAVE」は、MASTERPIECE、THINKに続くNASUシリーズ3棟目の建築である。設計はSUPPOSE DESIGN OFFICEの谷尻 誠氏と吉田愛氏が手がけ、“整うための洞窟”をテーマに地形に寄り添うよう埋め込まれた構造を採用。
コンクリートやモールテックスの質感が風景と溶け合い、時間の経過とともに自然の一部となることを意図している。テラスを含む総面積は480㎡超で、プライベートプールやサウナ、温泉を備え、最大6名が宿泊可能。暗がりに差し込む光、水面に空を映すプール、炎が揺らぐテラスなど、自然の要素が設計に織り込まれ、静けさの中に深い豊かさを感じさせる空間である。人工と自然の境界を消し去り、人の感覚を再び“整える”ための建築として構想された。

Collaborators
Makoto Tanijiri
Architect

Collaborators
Ai Yoshida
Architect
Collaborators
設計SUPPOSE DESIGN OFFICE
構造・設備設計Arup
照明nosight
ランドスケープSOLSO
施工東武建設株式会社
CGパースLIT design
竣工写真 Kenta Hasegawa
NOT A HOTEL ARCHITECTS









Spec
建物名称
NOT A HOTEL NASU CAVE
所在地
〒 324-0403栃木県大田原市狭原1291-7
竣工年
2024/2
敷地面積
481.76㎡(286.06㎡ + 195.7㎡)
建築面積
286.06㎡
延床面積
286.06㎡
















Shinichiro Hirai
Senior Project Manager
SUPPOSE DESIGN OFFICEによる3作目の建築、「NOT A HOTEL NASU CAVE」。
前作であるMASTERPIECE、THINKと同じ風景に面しながらも、まったく異なるコンセプトとデザインを具現化。ここにしかない新たな風景をつくるため、プロジェクトマネジメントから細部の意匠に至るまで、丁寧に検証と調整を重ねました。
なかでも特徴的なのが、外部から内部まで、壁・床・天井を一体的に仕上げた左官材「モールテックス」。素材の表情や質感を最大限に引き出すため、設計者や施工者と幾度も検討を重ね、最適な仕上げを追求しました。
その結果、風合い・精度・品質のすべてを兼ね備えた空間が生まれ、自然と調和しながら、時間とともに風景の一部として深みを増していく建築となりました。仲間とともに理想のかたちを追い求め続けたその時間は、今も心に残る大切な経験です。