
NOT A HOTEL
FUKUOKA
Expertise
Business Development
Project Management
Design
Brand Direction
CG Visualization
Engineering Management
Life Cycle Management
Hotel Management
福岡市・薬院に位置する「NOT A HOTEL FUKUOKA」は、NOT A HOTEL初の都市型コンドミニアムであり、建築は佐々木 慧氏率いるaxonometricとNKS2 architects、監修は小山 薫堂氏が手がけた。コンセプトは“旅と暮らしをボーダーレスに、人生の余白(blank)を楽しむもうひとつの拠点”。
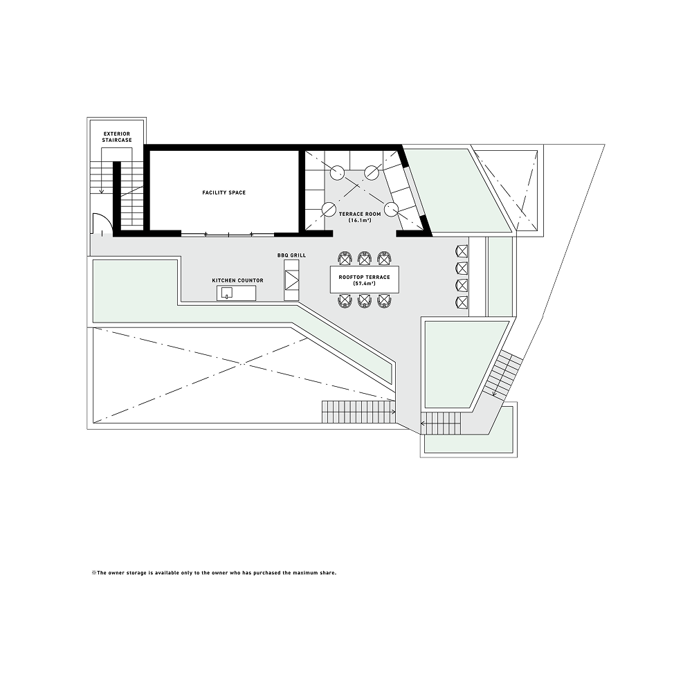
福岡空港から車で約15分、天神まで自転車で10分という利便性の高いロケーションに、8つの異なるコンセプトをもつハウス(+PENTHOUSE、+CHEF、+DESK、+DOMA、+RETREAT、+BAR、+ATELIER、+SOUND)が並ぶ。すべての空間が100㎡を超えるゆとりを備え、屋外テラスやプライベートサウナなどを通して、都市の中でも開放感を感じられる設計となっている。1階には宿泊者専用のラウンジ「+BLANK」を併設し、街と人、旅と暮らしをつなぐ新しい拠点として機能する。

Kundo Koyama
Direction

Kei Sasaki
Architect

Ryu Kosaka
Interior Design
Collaborators
NOT A HOTEL ARCHITECTS









Spec
建物名称
NOT A HOTEL FUKUOKA
所在地
〒810-0013 福岡県福岡市中央区大宮2丁目3-34 NOT A HOTEL FUKUOKA
竣工年
2023/9
施工期間
2022/3~2023/9
敷地面積
+PENTHOUSE:253.4㎡(119.1㎡ + 134.3㎡) +SOUND:113.48㎡(107.5㎡ + 5.98㎡) +BAR:114.36㎡(108.41㎡ + 5.95㎡) +RETREAT:142.39㎡(125.21㎡ + 17.18㎡) +ATELIER:126.90㎡(117.02㎡ + 9.88㎡) +CHEF:154.79㎡(125.7㎡ + 29.09㎡) +DESK:140.77㎡(129.51㎡ + 11.26㎡) +DOMA:172.66㎡(123.13㎡ + 49.53㎡)
建築面積
+PENTHOUSE:134.3㎡ +SOUND:107.5㎡ +BAR:108.41㎡ +RETREAT:125.21㎡ +ATELIER:117.02㎡ +CHEF:125.7㎡ +DESK:129.51㎡ +DOMA:123.13㎡
延床面積
+PENTHOUSE:119.1㎡ +SOUND:107.5㎡ +BAR:108.41㎡ +RETREAT:125.21㎡ +ATELIER:117.02㎡ +CHEF:125.7㎡ +DESK:129.51㎡ +DOMA:123.13㎡























Gen Sugiyama
MEP Engineering Manager
都市のなかにありながら、滞在者が心を解き放ち“人生の余白(blank)”を感じられる場所を目指し、建築設備とライフサイクルのマネジメントを担う立場としてプロジェクトを推進しました。
ゲストが感じる快適性を追求することこそが、余白を豊かにする鍵だと考え、空調や自動制御の設計において設計者・施工者と幾度も検証を重ねています。温湿度の繊細なコントロールと、それを支える自動制御システム(KNX)の最適化によって、目に見えない心地よさを実現。
“blank”の名にふさわしく、静かで深い快適さが、人生の中にそっと余白をもたらす建築となりました。