
NOT A HOTEL
AOSHIMA
Expertise
Business Development
Project Management
Design
Brand Direction
CG Visualization
Engineering Management
Life Cycle Management
Hotel Management
「NOT A HOTEL AOSHIMA」は、NOT A HOTEL初の拠点であり、宮崎市がプロポーザル募集を行った土地にて官民連携で開発されたプロジェクトである。設計はGENERAL DESIGNの大堀 伸氏が手がけ、南国の自然と調和する開放的な建築が特徴である。
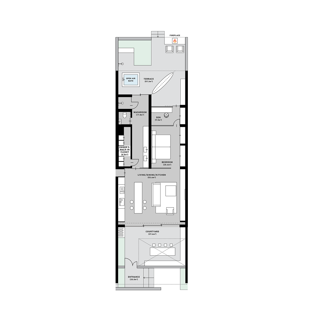
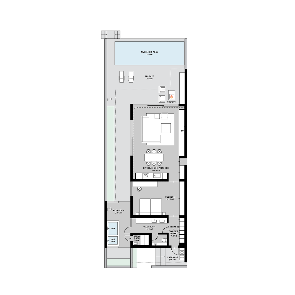
全6室は4タイプで構成され、1棟独立型の「MASTERPIECE」は青島の海を最も近くに感じる象徴的な邸宅、「CHILL」は水平線とつながるインフィニティプールを持つ開放的な空間、「SURF」は海へ10秒でアクセスできるサーファーのための家、「GARDEN」は海と中庭の二つの庭を楽しめる構成である。2026年には新棟「CHILL 2.0」「COAST」を加え、青島の風景とともに進化を続ける拠点である。

SHIN OHORI
Architect
Collaborators
NOT A HOTEL ARCHITECTS









Spec
建物名称
NOT A HOTEL AOSHIMA
所在地
〒889-2162 宮崎県宮崎市青島2丁目241-1
竣工年
2022/9
敷地面積
MASTERPIECE:767.38㎡(屋内206.66㎡ + テラス560.72㎡) / 767.38㎡ (Indoor: 206.66㎡ + Terrace: 560.72㎡) CHILL:457.20㎡(屋内193.21㎡ + テラス264.08㎡) / 457.20 m² (193.21 m² indoor + 264.08 m² terrace) SURF:291.61㎡(屋内142.72㎡+ テラス 148.89㎡) / 291.61 m² (Indoor: 142.72 m² + Terrace: 148.89 m²) GARDEN:229.84㎡(屋内 114.88㎡ + テラス 114.88㎡) / 229.84 m² (Indoor: 114.88 m² + Terrace: 114.88 m²)
建築面積
MASTERPIECE:300.341㎡ CHILL:193.21㎡ SURF:180.425㎡ GARDEN:166.159㎡
延床面積
MASTERPIECE:265.091㎡ CHILL:208.42㎡ SURF:181.125㎡ GARDEN:159.259㎡
















Junpei Yusa
Brand Director
ジェネラルデザインの大堀 伸氏が掲げる「豊かな時間を過ごせるかどうか」という思想とデザインのもと、大堀氏の描く世界観をさらに拡張できるよう、建築および家具のディレクションを行いました。NOT A HOTEL初の拠点ということもあり、試行錯誤を重ねながら「NOT A HOTELらしさ」を形づくるためのルールやディテールを、限られた時間の中で各チームと共に構築していったことは非常に感慨深い経験でした。
木質仕上げや家具まわりなど、これまで経験の少なかった領域に苦戦する場面もありましたが、最終的には想いのこもった、とても良い空間に仕上がりました。この挑戦の積み重ねが、その後のNOT A HOTELの礎となり、ブランドの方向性を形づくる大きな一歩になったと考えています。